Childrens Community Culture Center

Childrens Community Culture Center

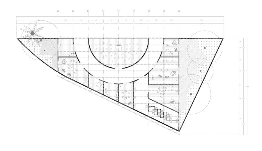
The Community Culture Pavilion is a large 15,000 m² cultural and educational complex dedicated to early childhood, children, and teenagers. It is located in a site that is partof the second section of Chapultepec Park and that formerly belonged to the Ministry of Defense, where the Presidential General Staff was located, and which was donated to the Ministry of Culture. Currently, the PCC serves as the headquarters of Semilleros Creativos, a national program of free (no cost) artistic training for children and youth that reports to the Ministry of Culture.

The urban strategy aimed to create pedestrian access to Chapultepec Park and pedestrian and vehicle access to Constituyentes Avenue, as well as to unify the complex with the creation of a large central plaza. The project includes 8,000 m² of green areas with a landscape project that incorporates concrete street furniture and new vegetation, the renovation of seven existing buildings, and the construction of three new buildings.

The new structures include the Music Academy building, with eight music classrooms and two courtyards at the north and south ends that incorporate vegetation; the Live Arts Forum, a generous circular roof located in the central green area; and the pavilion dedicated to the Wings and Roots program, which is divided into a Baby Library and a Playroom.

The renovated structures include two former garages, which have been converted into the building dedicated to the Tutti Orchestra and the building dedicated to the Circus and Aerial Dance Seedbed; a former industrial warehouse that served as a mechanical workshop has been converted into the Multipurpose Gallery dedicated to the arts; and the former soldiers’ workshops and bedrooms, which have been transformed into the building dedicated to Recording and Radio, Silkscreen and Bookbinding, Carpentry and Metalworking, Traditional Graphics, Theater and Singing, a Library, among others, as well as a Residence for artisans and children.

The goal was to create a connection with the public and the nearby Daniel Garza Usabiaga neighborhood through the insertion of large metal letters on the facade facing Constituyentes Avenue and future mural interventions there. The project also serves as a safe space to welcome children from all corners of the country, as well as the general public visiting Chapultepec Park.

The Community Culture Pavilion is a large 15,000 m² cultural and educational complex dedicated to early childhood, children, and teenagers. It is located in a site that is partof the second section of Chapultepec Park and that formerly belonged to the Ministry of Defense, where the Presidential General Staff was located, and which was donated to the Ministry of Culture. Currently, the PCC serves as the headquarters of Semilleros Creativos, a national program of free (no cost) artistic training for children and youth that reports to the Ministry of Culture.

The urban strategy aimed to create pedestrian access to Chapultepec Park and pedestrian and vehicle access to Constituyentes Avenue, as well as to unify the complex with the creation of a large central plaza. The project includes 8,000 m² of green areas with a landscape project that incorporates concrete street furniture and new vegetation, the renovation of seven existing buildings, and the construction of three new buildings.

The new structures include the Music Academy building, with eight music classrooms and two courtyards at the north and south ends that incorporate vegetation; the Live Arts Forum, a generous circular roof located in the central green area; and the pavilion dedicated to the Wings and Roots program, which is divided into a Baby Library and a Playroom.

The renovated structures include two former garages, which have been converted into the building dedicated to the Tutti Orchestra and the building dedicated to the Circus and Aerial Dance Seedbed; a former industrial warehouse that served as a mechanical workshop has been converted into the Multipurpose Gallery dedicated to the arts; and the former soldiers’ workshops and bedrooms, which have been transformed into the building dedicated to Recording and Radio, Silkscreen and Bookbinding, Carpentry and Metalworking, Traditional Graphics, Theater and Singing, a Library, among others, as well as a Residence for artisans and children.

The goal was to create a connection with the public and the nearby Daniel Garza Usabiaga neighborhood through the insertion of large metal letters on the facade facing Constituyentes Avenue and future mural interventions there. The project also serves as a safe space to welcome children from all corners of the country, as well as the general public visiting Chapultepec Park.

 

Architecture: LANZA atelier

Design team at LANZA: Henry Peters, Fernanda Gómez, Jéssica Hernández, Ismael Salazar.

Engineering: KOVA Engineering, Fremer Engineering

Promoted by: Secretaría de Cultura

Photography: Francesc Pascual i Torrens, Paulo García.

Aerial photography: Enrique Macías (EMStudio).